Amf Panel Wiring Diagram Pdf - Amf panel wiring diagram pdf bernini design. 25 Kva Amf Panels For Dg Generators Harsh Automation Controls Id 18588755091.
Wiring Tenaga Panel Ats Amf Pdf
It shows the components of the circuit as simplified shapes and the capacity and signal associates amid the devices.

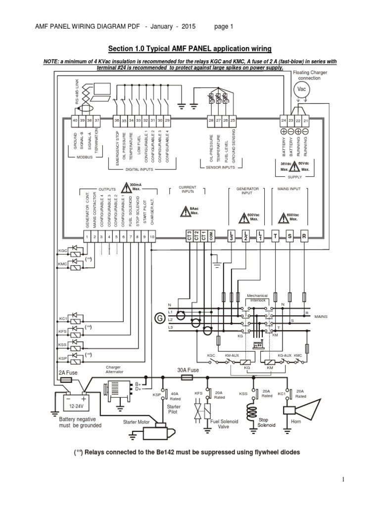
Amf panel wiring diagram pdf. The controller will guarantee remote control monitoring and functionalities when utility power is outside limits. Amf panel wiring diagram pdf january 2015 page 1 1 section 1 0 typical amf panel application wiring note a minimum of 4 kvac insulation is recommended for the relays kgc and kmc a fuse of 2 a fast blow in series in the manner of terminal 24 is recommended to protect next to large spikes more or less gift supply fuel. Wiring Tenaga Panel Ats Amf Pdf Txt.
Each wire is identified with its reference number in each end. Auto Main Failure Amf Panel Only D G Control Manufacturer From Mumbai. Amf Panel Wiring Diagram Pdf Themckittricks Net Https Www Irjet Net Archives V5 I3 Irjet V5i3757 Pdf Diagram 1972 Catalina 22 Wiring Diagram Full Version Hd Quality Diagram Amf Panel Wiring Diagram Full Version Hd Quality Wiring.
AMF control panel circuit diagram PDF description. Front door with lock. An amf panel equipped with bek3 is designed to work with the power generator engine battery.
Comap Intelilite Nt Amf 20 Auto Mains Failure Gen Set Controller. Amf Ats Control Panel Smart Gen 51437kpegvnj Automatic Transfer Switch Ats Design By Unsw Engineer Pakistan Bab V Analisa Dan Pemecahan Masalah Pdf Free Download Perancangan Ats Automatic Transfer Switch Satu Phasa 4 Pole Ats Wiring Diagram Wiring. A wiring diagram is a streamlined standard photographic representation of an electric circuit.
A wiring diagram usually gives information approximately the relative point of view and. Generator Synchronizing Panel Circuit Diagram Pdf. Superior design and robust construction make jundi electrical industry teco automatic transfer switch the industry.
It further controls supply to electric starter. What is generator synchronization synchronizing lamps methods circuit globe design and implementation of an automatic protection relay through power hardware in the loop phil simulatio plant wide autosynchronization based on iec 61850 relays parallel method generators for cost saving. What others are saying ats panel control is the best option in situation wherever you have to control a power generator that is connected to the mains in a standby configuration.
Residential Electrical Wiring Diagrams Pdf For Amf Control Panel throughout Electrical Wiring Diagram Pdf by admin From the thousand images on the internet concerning electrical wiring diagram pdf we selects the top selections together with ideal resolution simply for you all and this photographs is usually among photographs collections inside our greatest. F e e d-b a c k di es el g as e n g i ne r p m o i l p r essu e wa t e r t e m p f u e l l e v e l st ar t e r d ba t. It reveals the elements of the circuit as streamlined shapes and the power and.
A diagram that uses lines to represent the wires and symbols to represent components. You will understand all details by following a step by step 60kva amf panel manufacturing. It is a transducer.
Ats Panel Wiring Diagram Pdf. Plc Control Panel Wiring Diagram Pdf Collection. Wiring Diagram For 220 Volt Submersible Pump Submersible Pump 1993 Ford Mustang Wiring Diagram 2001 Ford Mus Submersible Pump Submersible Well Pump Sump Pump.
Amf panel wiring diagram pdf bernini design. Put back the small cover. SINGLE-LINE DIAGRAM AND.
InteliLiteNT AMF2025 SW version 15 ComAp September 2009 9 IL-NT-AMF-Reference Guide15pdf f 6. Interconnecting wire courses may be revealed around where particular receptacles or fixtures must be on an usual. Amf panel wiring diagram pdf january 2015 page 1 1 section 1 0 typical amf panel application wiring note a minimum of 4 kvac insulation is recommended for the relays kgc and kmc a fuse of 2 a fast blow in series behind terminal 24 is recommended to protect adjoining large spikes vis-Ð-vis knack faculty supply fuel solenoid.
Plug RS 232 communication module into the slot of the controller. Amf control panel circuit diagram pdf generator controllers. It gives the electrical signal for lube oil pressure measurement relevant low pressure switching.
AMF PANEL WIRING DIAGRAM PDF - January - 2015 page 1 1 Section 10 Typical AMF PANEL application wiring NOTE. The Complete Guide Of Single. Legrand 03700 Timer Wiring Timer Wire Electrition.
F e e d-b a c k m a i n s c. Page 4 of 7 operating procedure for amf control panel. Amf control panel circuit diagram pdf tally an amf panel equipped taking into consideration bek3 is designed to performance later the power generator engine battery the controller will guarantee proud control monitoring and functionalities considering utility power is outside limits.
Magnetic Contactor Wiring Diagram Pdf Electrical Circuit Diagram Electrical Symbols Diagram. Plc control panel wiring diagram pdf - Architectural electrical wiring layouts reveal the approximate areas and interconnections of receptacles lights as well as long-term electrical solutions in a building. The Bek3 controller is able to work from 5 up to 36Vdc.
32 Wiring Panel Ats Genset. For 4 pole ATS connect the neutral wire of 3-phase 4-wire cable to N-phase on the right side. Bottom entrance for wiring inlet.
An AMF panel equipped with Bek3 is designed to work with the power generator engine battery. When you insert RS 232 communication module the boot jumper is hidden. A diagram that represents the elements of a system using abstract graphic drawings or realistic pictures.
Rancang Ban Panel Automatic Transfer Switch Ats Dan Main Failure Amf Kapasitas 66 Kva. Connection wiring of all the panels electrical items. 06 Diagram Panel Amf 1x20kva Pdf Txt.
Amf panel wiring diagram pdf. Take RS 232 communication module. Electrical Control Panel Wiring Pdf.
Variety of generator control panel wiring diagram pdf. Il-amf-22pdf recommended wiring amf wiring diagram lo ad ac c e s s lo c k em e r ge n c y s t o p co ntr o l si gn al s g e n c. Amf Ats Control Panel Smart Gen 51437kpegvnj Automatic Transfer Switch Ats Design By Unsw Engineer Pakistan Bab V Analisa Dan Pemecahan Masalah Pdf Free Download Perancangan Ats Automatic Transfer Switch Satu Phasa 4 Pole Ats Wiring Diagram Wiring.
35 Latest Fg Wilson 2000 Control Panel Wiring Diagram Pdf Stephan Fuchs. Electricveda Com Automatic Transfer Switch Ats Or Mains Failure Amf Panel. Amf control panel circuit diagram pdf tally an amf panel equipped taking into consideration bek3 is designed to performance later the power generator engine battery the controller will guarantee proud control monitoring and.
Design And Development Of Automatic Mains Failure Panel For Sel Generator. Note- All panels are protected against direct contact with live parts when the door is open. Ats panel wiring diagram pdf.
Star delta power and contol wiring with timer. Amf control panel circuit diagram pdf description. Electrician Circuit Drawings and Wiring Diagrams Youth Explore Trades Skills 3 Pictorial diagram.
Electrical Panel Board Wiring Diagram Pdf wiring diagram is a simplified normal pictorial representation of an electrical circuit. A minimum of 4 KVac insulation is recommended for the relays KGC and KMC A fuse of 2 A fast-blow in series with terminal 24 is recommended to protect against large spikes on power supply. Accessories to amf control panel it is being operated by str relay.
Images December 15 2019 Post a Comment.
35 Latest Fg Wilson 2000 Control Panel Wiring Diagram Pdf Stephan Fuchs
2

25 Kva Amf Panels For Dg Generators Harsh Automation Controls Id 18588755091

Membuat Panel Amf Ats Switch Genset Otomatis Teknik Listrik Listrik Teknik

Diesel Generator Control Panel Wiring Diagram Bek3 Generator Transfer Switch Electrical Wiring Diagram Circuit Diagram

Pin On Test Mezmur

Amf Panel Full Description Electrical Control Panel Youtube
Wiring Tenaga Panel Ats Amf Pdf
Drafter Drawing Electrical Panel Gambar Wiring Wiring Diagram Shopee Indonesia

Amf Panel Working And Installation Amf Panel Wiring Diagram Malayalam Youtube

Wiring Tenaga Panel Ats Amf Pdf Txt

Rangkaian Ats Amf Genset Otomatis Sariling Genset
Amf Control Panel Pdf Switch Relay

Amf Panel Wiring Youtube